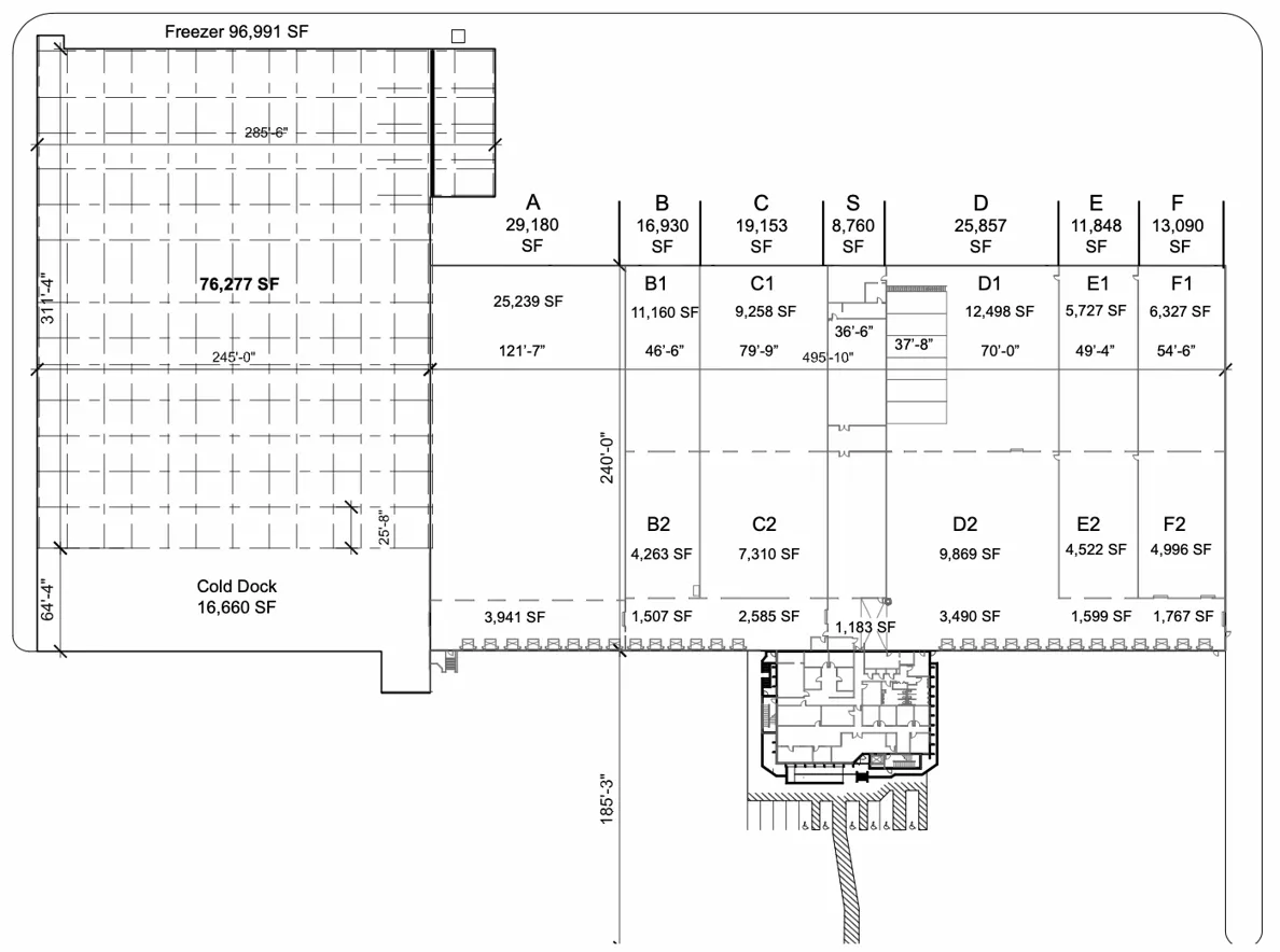
Warehouse Divisibility - Picture with Definition
Last Updated July 1, 2022
See Our List of Metro Home Pages and Select/View Yours
Warehouse Divisibility - Picture with Definition
Why can’t this landlord just divide up the space in this warehouse to lease exactly the amount and type of
space I need? I know - it seems like a simple thing to do. And sometimes, it can be fairly simple. BUT,
there are complications. This article is intended to discuss a fair subset of the issues complicating the
divisibility of warehouses with various resources to share - or not to share.
Common Areas
One of the first things a landlord who wishes to subdivide must consider is the
resources the property
contains that could and should be shared among the tenants to maximize the value of those resources
-
probably in terms of rent value to the landlord. Sometimes this prioritization also benefits the
tenants.
Hopefully this ends up being most times, since they are the ones who ultimately pay the bills, so to
speak. Some of these shared resources can be:
For more discussion of this type of space, click on common area maintenance.
Valuable Building Resources Not Easily Sub-Divided
There are a quite a few choices for this particular discussion. Some of the big
ones
that come to mind
right away are:
Cold Storage Areas
Ideally for everyone, you would need the amount and type of cold storage space a landlord has to
lease
in any given building. That way, no sub-dividing of that resource would be required. In the
likely event
that you need less space than is available, the space CAN BE sub-divided, but the task is likely
more
complicated that with many other types of space. Temperature control in any given cold storage
space is
likely either designed to be cooled as a single unit to a single temperature, or perhaps
designed as
separate areas. Subdividing a given area will likely require additional cooling units in
addition the
thermostats and insulated dividers, so there can be significant expense involved. If the space
is large
enough, then it can be worth it to everyone, but it’s not a given. Chances are, the landlord
would
expect you to help with these additional expenses - perhaps in the form on a longer lease period
or
perhaps helping with or paying all of those upgrade costs..
Crane-Served Areas
Cranes are generally built to lift and move heavy objects around is a give area (of more
accurately,
volume). For things like bridge cranes, that area can be quite large, and the act of equipping
the
building for that crane quite expensive. As above, if you wish to lease a crane-equipped/-served
space,
and you need the crane area that the landlord has, then this is the best case. If you need less,
then
usually that would involve looking for another space, although it is possible to subdivide large
crane
volumes. Possible, but likely expensive. It would probably involve building a divider, modifying
the
controller for the existing unit, and adding a new bridge and crane for the separate area.
Again, pretty
expensive, but possible.
The landlord COULD define a crane volume as a common area amenity as well, but if you actually
need a
crane, the need might not, and probably isn’t transitory.
Small Dock Access
If the facility being subdivided has enough docks, then the landlord would probably subdivide the
docks
between tenants as well. This limits things a bit, as the storage area would either need to be
contiguous with the docks assigned, or hallways would have to be set aside between the storage
and
assigned docks. This is probably best case.
If the building does not have sufficient dock doors to serve everyone’s needs, then making the
docks a
common/shared resource is another options. You would need to provide an access path, and a means
to
schedule timing of the use of the docks.
If one could count on people to “play nice” with each other, you might have more options. There are
certain things - probably more than we’d like to admit - that simply must be subdivided into
completely
separate and isolated areas, for interpersonal, legal, business, or other practical reasons.
How Can Warehouse Finder Help?
Warehouse Finder Affiliates are experienced brokerages that assist clients identifying and acquiring
the
right industrial properties all the time. Instead of wading through listings and unfulfilled
promises of
listing from other web sites, why don’t you just delegate your search to us. We’ll help you
determine
exactly what you need, find your property for you from listed, unlisted, and off-market sources and
help
you acquire it. The cost of our standard set of services is included in the lease/purchase price. To
make
contact with us, please use our chat widget to the bottom right of our Get Started page, call the
number
at the top right of your screen, or go to our Get Started page to send us your contact information
and a
summary of your requirement.